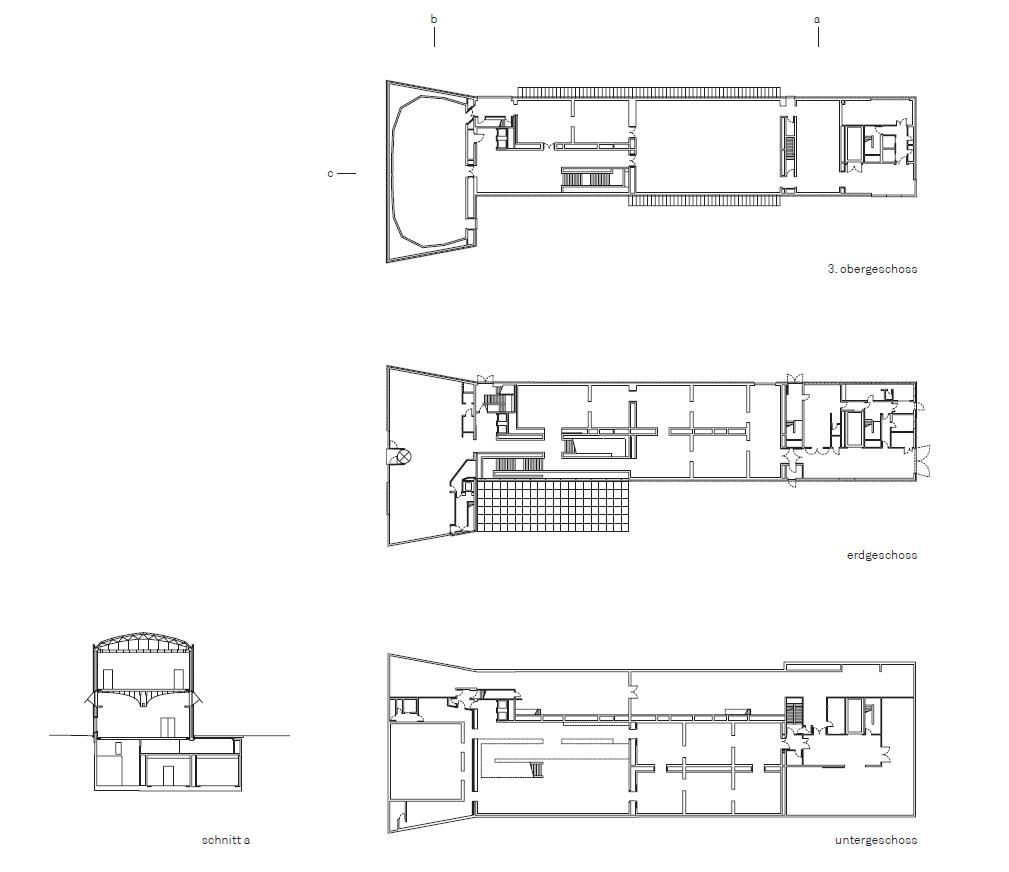
Brandhorst Müzesi – Sauerbruch Hotton
Brandhorst Müzesi
- arkitektuel
- 30 Nisan
- 634 Views
You must be logged in to post a comment.
Mimarlığın Türkçesi
Mimarlığın Türkçesi
Brandhorst Müzesi – Sauerbruch Hotton
You must be logged in to post a comment.
NO COMMENT