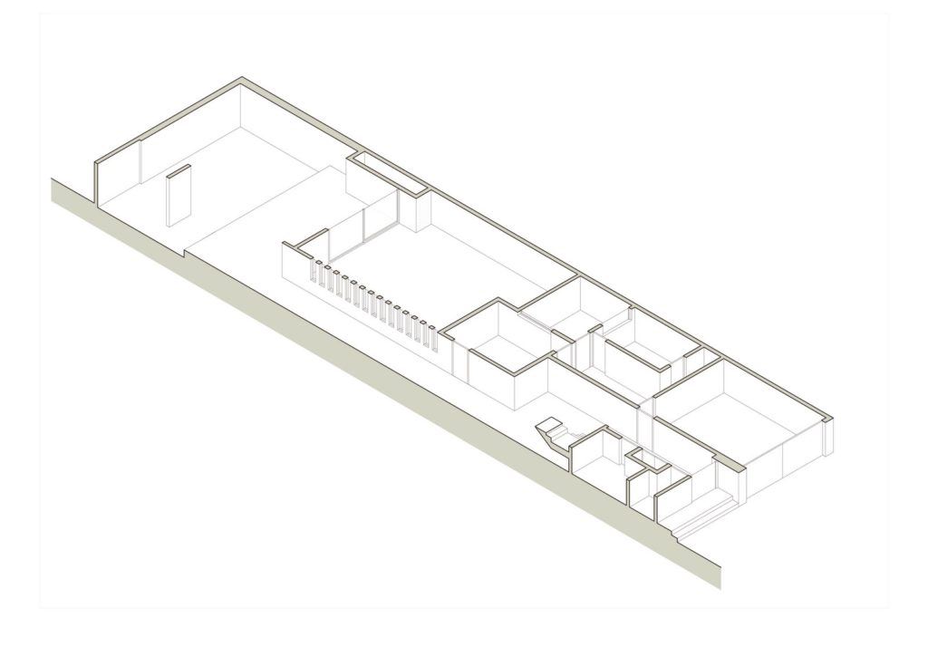
Casa Gilardi – Luis Barragan Plan
Casa Gilardi
- arkitektuel
- 1 Mart
- 1282 Views
You must be logged in to post a comment.
Mimarlığın Türkçesi
Mimarlığın Türkçesi
Casa Gilardi – Luis Barragan Plan
You must be logged in to post a comment.
NO COMMENT