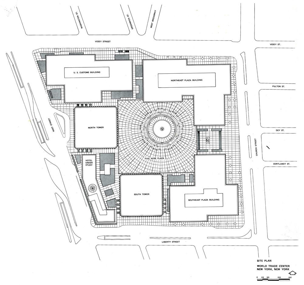
Dünya Ticaret Merkezi – İkiz Kuleler / Minoru Yamasaki plan
You must be logged in to post a comment.
Mimarlığın Türkçesi
Mimarlığın Türkçesi
Dünya Ticaret Merkezi – İkiz Kuleler / Minoru Yamasaki plan
You must be logged in to post a comment.
NO COMMENT