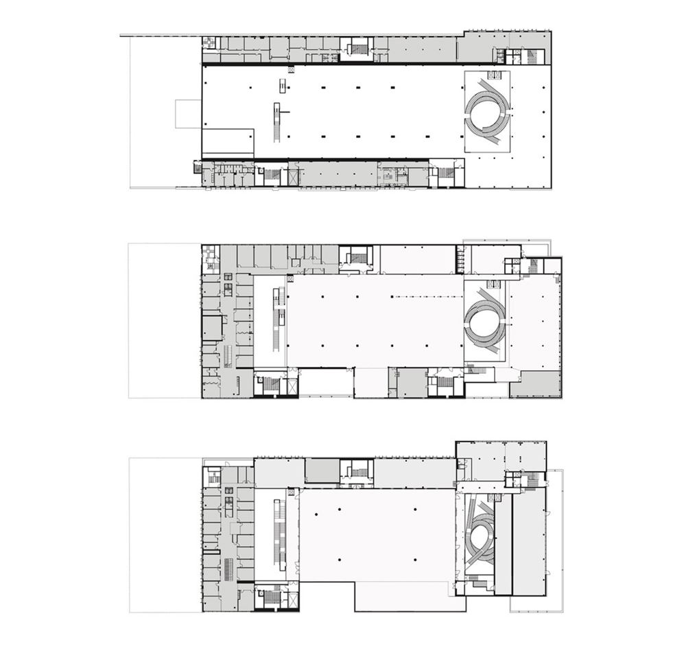
Experimentarium / CEBRA plan
Experimentarium
- Arkitektuel1
- 16 Eylül
- 600 Views
You must be logged in to post a comment.
Mimarlığın Türkçesi
Mimarlığın Türkçesi
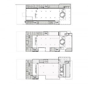
Experimentarium / CEBRA plan
You must be logged in to post a comment.
NO COMMENT