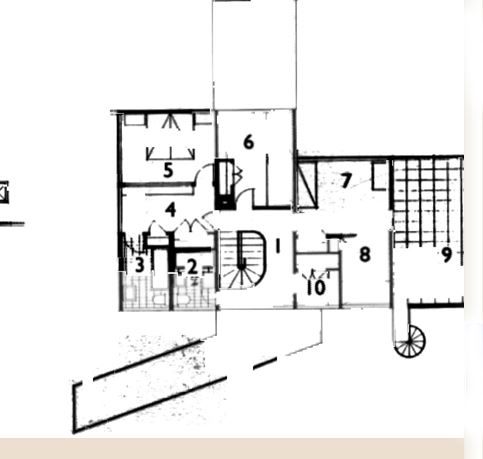
Gropius Evi – Walter Gropius plan
Gropius Evi
- arkitektuel
- 26 Mart
- 1545 Views
You must be logged in to post a comment.
Mimarlığın Türkçesi
Mimarlığın Türkçesi
Gropius Evi – Walter Gropius plan
You must be logged in to post a comment.
NO COMMENT