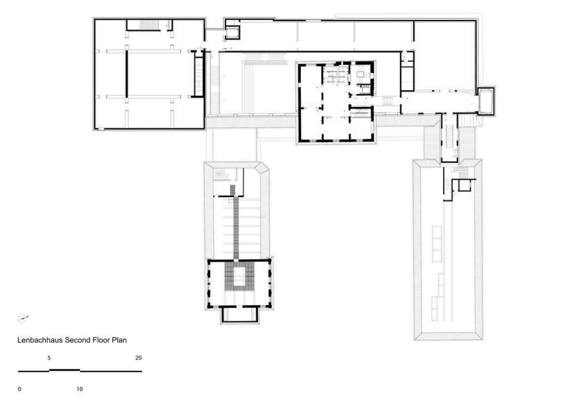
Lenbachhaus Müzesi – Foster + Partners
Lenbachhaus Müzesi
- arkitektuel
- 24 Nisan
- 714 Views
You must be logged in to post a comment.
Mimarlığın Türkçesi
Mimarlığın Türkçesi
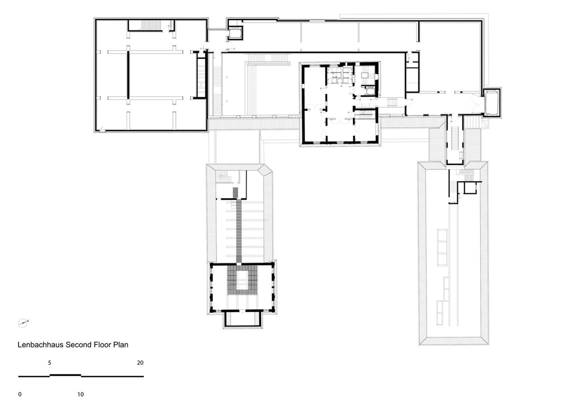
Lenbachhaus Müzesi – Foster + Partners
You must be logged in to post a comment.
NO COMMENT