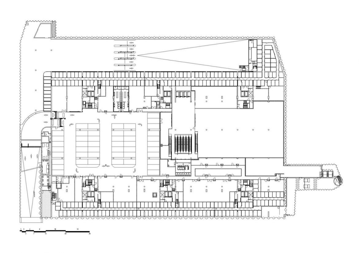
Markthal Rotterdam – MVRDV plan
Markthal Rotterdam
- Nida Bilgen
- 19 Ekim
- 1273 Views
You must be logged in to post a comment.
Mimarlığın Türkçesi
Mimarlığın Türkçesi
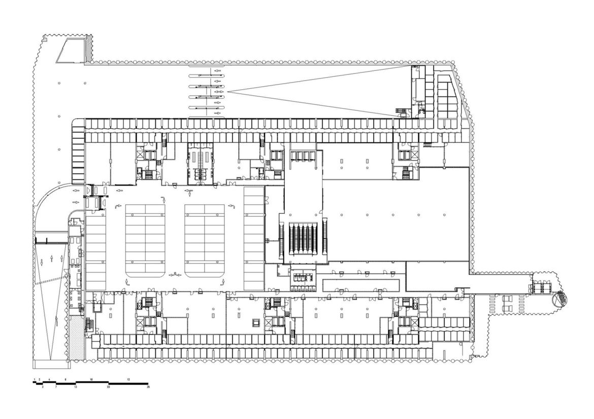
Markthal Rotterdam – MVRDV plan
You must be logged in to post a comment.
NO COMMENT