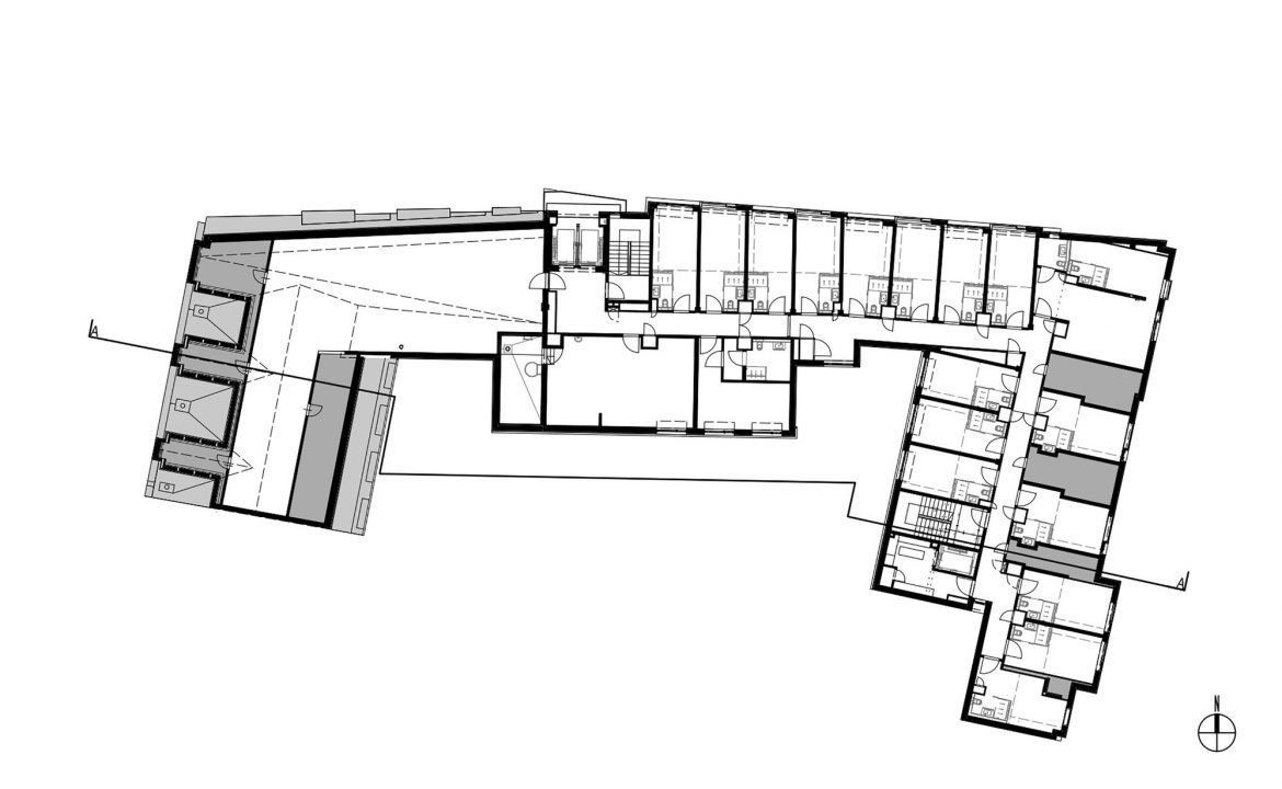
Puro Hotel – ASW Architecki plan
Puro Hotel
- arkitektuel
- 19 Eylül
- 782 Views
You must be logged in to post a comment.
Mimarlığın Türkçesi
Mimarlığın Türkçesi
Puro Hotel – ASW Architecki plan
You must be logged in to post a comment.
NO COMMENT