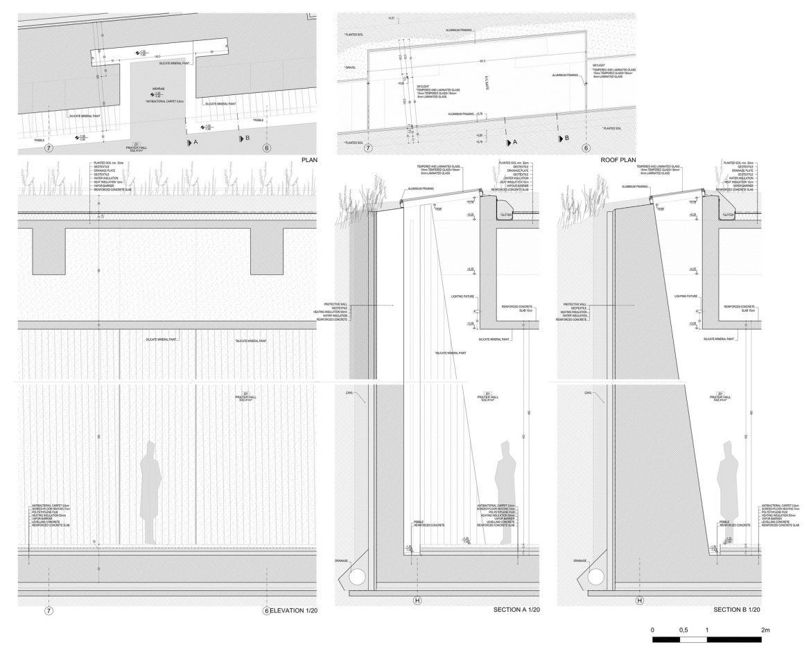
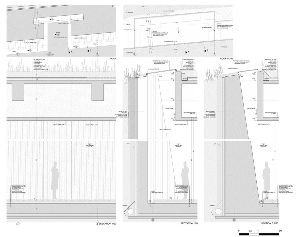
Sancaklar Camii – Emre Arolat detay
Sancaklar Camii
- arkitektuel
- 20 Şubat
- 1839 Views
You must be logged in to post a comment.
Mimarlığın Türkçesi
Mimarlığın Türkçesi
Sancaklar Camii – Emre Arolat detay
You must be logged in to post a comment.
NO COMMENT