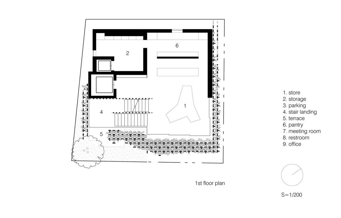
Sunny Hills – Kengo Kuma plan
Sunny Hills
- arkitektuel
- 1 Mayıs
- 1844 Views
You must be logged in to post a comment.
Mimarlığın Türkçesi
Mimarlığın Türkçesi
Sunny Hills – Kengo Kuma plan
You must be logged in to post a comment.
NO COMMENT