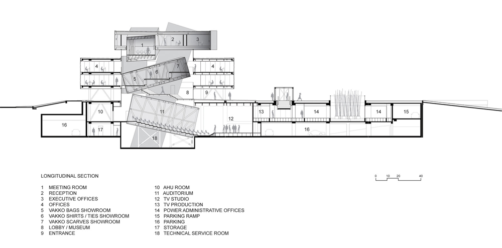
Vakko Moda ve Power Medya Merkezi / REX kesit
You must be logged in to post a comment.
Mimarlığın Türkçesi
Mimarlığın Türkçesi
Vakko Moda ve Power Medya Merkezi / REX kesit
You must be logged in to post a comment.
NO COMMENT