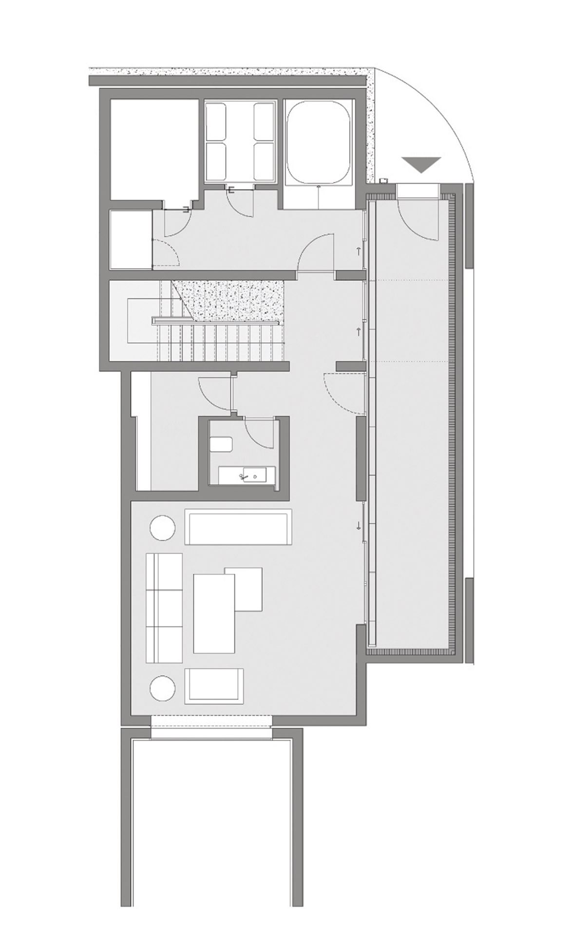
Vicem Bodrum Yalıları – Emre Arolat plan
Vicem Bodrum Yalıları
- arkitektuel
- 22 Ağustos
- 700 Views
You must be logged in to post a comment.
Mimarlığın Türkçesi
Mimarlığın Türkçesi
Vicem Bodrum Yalıları – Emre Arolat plan
You must be logged in to post a comment.
NO COMMENT